BANCO AZUL
ALHAURÍN DE LA TORRE (MÁLAGA)
Sup. Parcela – 300,00m2
Altura – PB+1
Sup. Construida – 189,00 m2
Situada en Avenida Santa Clara, Alhaurín de la Torre, esta vivienda pareada representa una arquitectura contemporánea que combina elegancia, funcionalidad y confort. Su diseño destaca por la pureza de los volúmenes, el equilibrio de proporciones y la conexión fluida entre interior y exterior.
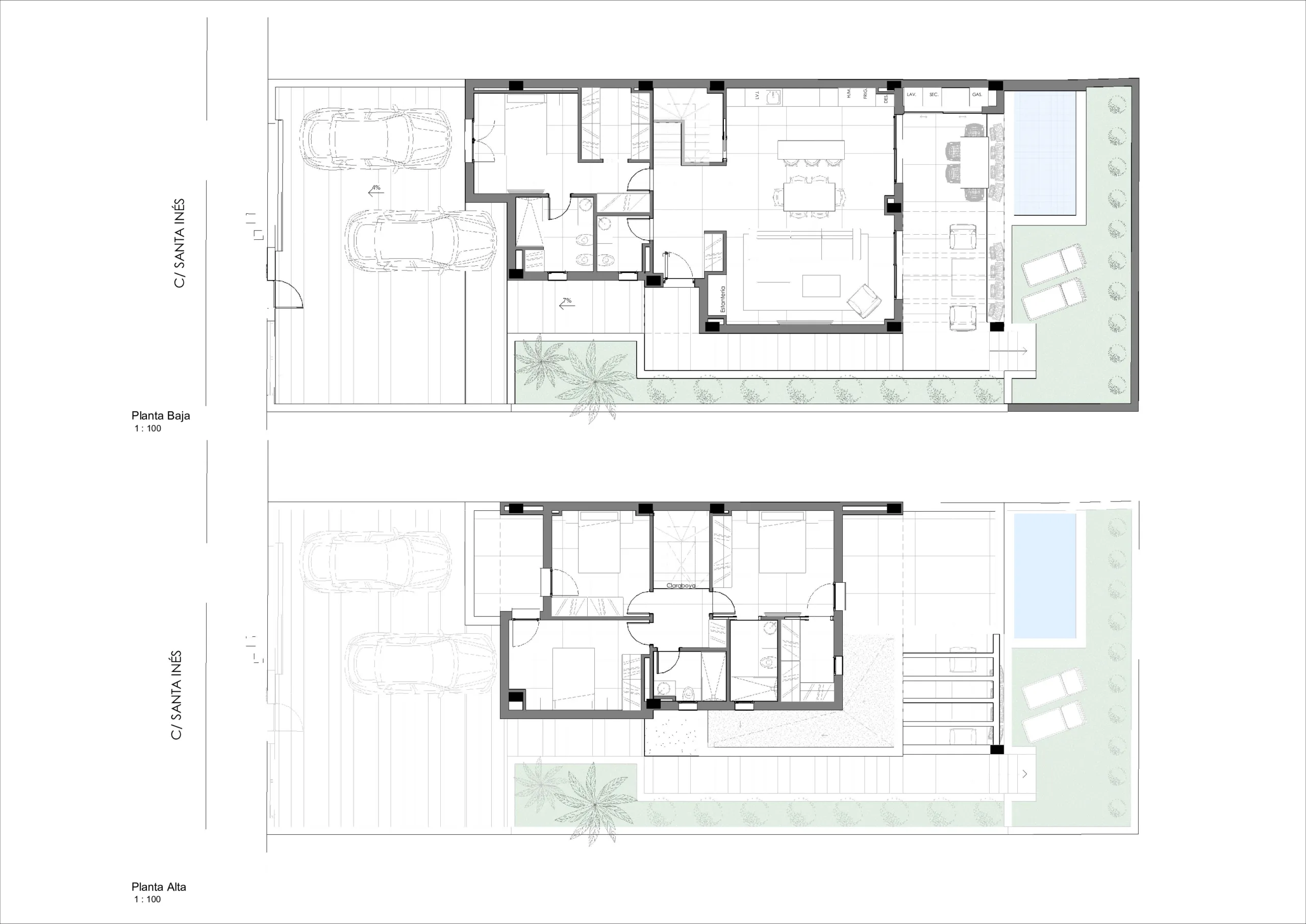
Distribución Interior
La vivienda se organiza en dos plantas pensadas para el bienestar diario.
En la planta baja, el acceso principal conduce a un amplio y luminoso salón-comedor que se abre al jardín mediante grandes ventanales, generando una sensación continua entre interior y exterior. La cocina, con zona de almacenamiento independiente, se integra de forma funcional al espacio principal. En esta planta se incluye también un dormitorio con vestidor y baño, perfecto como suite de invitados o dormitorio principal, además de un aseo de cortesía y zona de lavandería.
La planta alta acoge tres dormitorios muy luminosos, dos baños completos y amplias terrazas privadas que prolongan el espacio habitable hacia el exterior. El dormitorio principal cuenta con vestidor y baño en suite, mientras que los otros dormitorios disfrutan de independencia y vistas al entorno.
Espacios Exteriores
El corazón del proyecto está en su zona exterior, concebida como una auténtica extensión de la vivienda.
La piscina se eleva ligeramente sobre el nivel del patio apergolado, lo que permite potenciar su presencia visual desde el interior y crear el efecto de una lámina de agua tipo fuente.
El muro perimetral de la piscina se aprovecha para generar un gran banco corrido, que envuelve la zona de comedor y estar exterior, conformando un espacio acogedor y social, pensado para compartir comidas, tertulias o momentos de relax al atardecer.
La combinación de pérgola, vegetación mediterránea y materiales naturales aporta frescor, sombra y una identidad muy marcada al conjunto.
Diseño y Materialidad
El diseño se caracteriza por líneas limpias y horizontales, donde el blanco del revoco contrasta con el acabado cálido del aplacado cerámico tipo travertino, aportando textura y equilibrio.
Las carpinterías en color negro, los voladizos y las pérgolas integradas refuerzan el carácter contemporáneo de la vivienda, además de mejorar su comportamiento térmico y la protección solar.
Eficiencia y Confort
Pensada para ofrecer máximo confort y eficiencia energética, la vivienda incorpora materiales y soluciones constructivas de altas prestaciones, garantizando bienestar durante todo el año y un mantenimiento reducido.








